Skip to content
About Us
Services
Projects
News
Careers
Contact us
About Us
Services
Projects
News
Careers
Contact us
Projects
Pasco Resource Recovery Center (PRRC)
Stats
GMAX EPC
3.28 MGD Flow Rate
One Main Plant
Food Processing Waste
2- Lagoon Digesters
2- Sequencing Batch Reactors
Membrane Gas Upgrading
H2S Removal
Grit Removal
Headworks Bldg
Covered Eq Tank
KY Distillery RNG Project
Stats
Contract: EPC
Feedstock: Stillage (the byproduct of bourbon distillation)
Gallons /Year: 105,000,000
Plant: One main plant
Digesters: 3 main and 1 secondary CSTR diesters
Lagoon: 1 covered lagoon
H2S: removed in the digesters
Gas Upgrader: Membrane
Liquid Co2 Recovery
Confidential North Carolina
Stats
3,200 SCFM
EPC then partial GC Role
Coordinated with Tech Company • Underground / Civil
Structural Concrete
Lump Sum General Contractor
Confidential Idaho
Stats
1000 SCFM
Brownfield upgrade
Commissioning Complete
Four Farms Manure Collection
Lump Sum EPC
9 Miles of RNG & NG pipeline
1 Mile Manure Pipeline
6 – Existing Digesters Refurbish
Membrane Gas Upgrading
Biological H2S Removal
2 - Remote Manure Loadout Facilities
Solids Separation
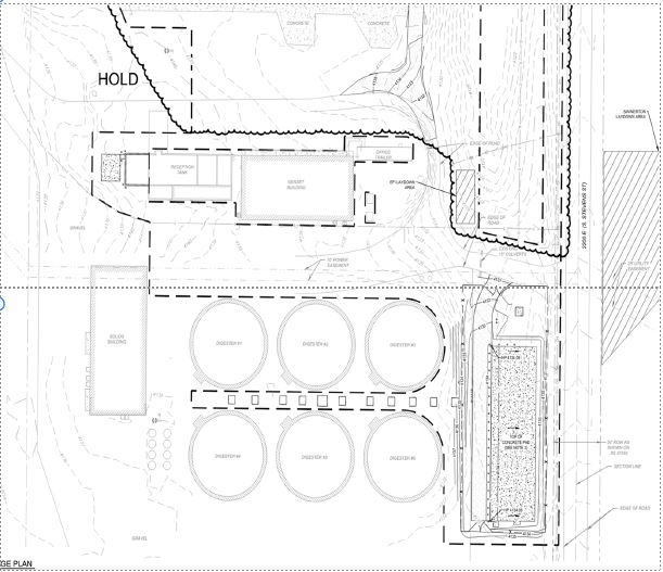
Confidential Colorado
Stats
230 SCFM
Lump Sum EPC
One Main Plant
Dairy Manure
1- CSTR Digesters
Membrane Gas Upgrading
H2S Removal
Grit Removal
Solids Separation
Covered Lagoons
1 Mile Gas Pipeline